碎片會員 季卡15.00美金,年卡50.00美金,全站免廣告,海量小說免費聽,獨享VIP小說,免費贈送福利站、短劇站、漫畫站
碎片會員 季卡15.00美金,年卡50.00美金,全站免廣告,海量小說免費聽,獨享VIP小說,免費贈送福利站、短劇站、漫畫站
{{item}}
{{item.name}}
{{item.name}}
{{item.name}}
{{item.name}}
{{item.name}}
{{item.name}}
不限
支持
不限
0-2w
2-5W
5-10W
10W+
不限
VIP
免费
熊警官,賀卡雖然送,失蹤事兒真跟沒系!”
“沒跟系啊?”熊穆詫異。
“別瞞,都,們懷疑送賀卡就犯,真,們定相信啊……”
原以訛傳訛把無辜嚇壞,過命,誰怕呢?
熊穆苦笑,隨問句:“張賀卡見過,挺漂亮,記得還夾朵吧?”
“也借獻佛。們院王主任蒔弄,辦公陽臺薔薇得好,就問摘朵送孟薇。”
“們平作麼忙,還照顧啊。”熊穆似乎察到什麼,順著孫醫話,往問。
“沒個,也沒個精力。王主任倒嫌麻煩,養就養性,平里還常拿干泡,陶冶操,洗滌靈。”
“哦?都泡些什麼啊?”
“就些菊、桂之類。”
干桂?!熊穆睛頓亮,匆忙打孫醫:“如果為賀卡事,麼請放,警方辦案講證據,面流言蜚語用乎。再,真無罪,追求漂亮姑娘又什麼錯,對吧?”
孫醫熊穆麼,焦慮神才漸漸放松:“謝謝熊警官,就,準沒錯。們齡差,定能理解……”
送孫醫,熊穆即將王主任干桂茶事告訴周建國,周建國又馬報楊隊。
兩很得到指示,與技術干警起秘密提取些診辦公及樣本,點王主任辦公桂茶。
第,些樣本就被送往省檢驗。
焦急等待兩,就等結果,馬抓。省化驗結果卻顯示,里提取植物纖維種名叫桂桂瓣,桂原產川,本省罕見到。種期達兩百,個季都期,而王主任桂茶普通桂瓣曬干所制。
更令失望,熊穆們連夜突擊收集樣本,沒份含桂成分。

現
到1213,孟薇失蹤已經超過周。
午,李梅廠區堂附到周建國熊穆,就緊幾步追,問問孟薇事否展。
“周警官、熊警官,希望們嫌煩,孟薇因為替值班才事,里實好受。”李梅著著就眶。
熊穆慰:“們非常理解,還希望過度自責,無論今后案件展如何,切都造成,法律讓該付代價付代價。”
李梅擦干淚擠絲笑:“謝謝熊警官。”
熊穆見里提著幾個銹鋼飯盒,就隨問句需需幫忙。
“用熊警官,送到傳染病,邊病都傳染性,們好過。”
“傳染病?”周建國問。
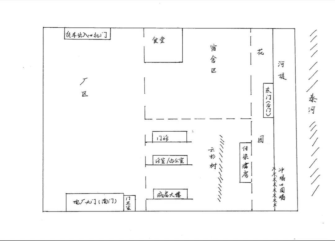
李梅指指病邊排云杉:“后面個平,現著幾個結核病,平允許們到院里,飯也送過。
”
原,排密集云杉隔病向傳染病,只留條徑,平很,只以為通往園。
周建國刻問熊穆:“傳染病咱們搜查過嗎?”
還沒等熊穆回答,李梅便搶先:“搜過。當醫院領導接到任務,怕公干警染,決定還由醫護員搜。也起,每個病都仔仔細細搜過,孟薇肯定里面。”
(廠區布局圖)
“其病都排查過,就傳染病些病們還沒問過話。索性。”熊穆對周建國完,便對李梅:“起送。”
“兒成呢,連個罩都沒戴,萬傳染……”
“讓吧。”周建國打斷李梅,并對幾句話。
幾分鐘后,穿著褂熊穆,帶著醫罩,全副武裝送飯。
第病里著個過旬老爺,見們送飯,主戴罩。
“怕傳染們,叫雙向防護。”老爺呵呵向熊穆,“個夫面,吧?”
“誒,實習,熟悉熟悉環境。”熊穆著,速掃部。
信用卡(台灣)
Paypal/信用卡
聯繫客服